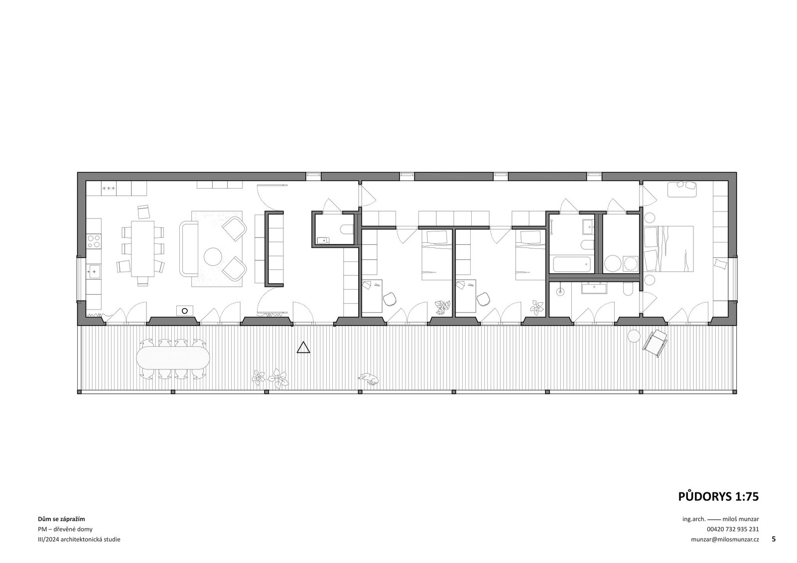
Jednoduchý lineární objekt se sedlovou střechou určený na lánové typy pozemků, horské enklávy či specifické pozemky nově zastavovaných území. Po celé délce domu je navrženo zápraží – tradiční prvek lidové architektury, který plnil praktický význam života na vsi – chránil před deštěm, ostrým sluncem, věšelo se zde prádlo, sušily se bylinky či cibuloviny.
Architekt: Ing. arch. Miloš Munzar
Autorský tým: Ing. arch. Tomáš Kovalčík
Tento jednoduchý princip zastřešené chodby se stal hlavní ideou celého domu. Všechny obytné místnosti mají přímý vstup na kryté zápraží sloužící jako pobytová plocha s přímou návaznosti na zahradu a fungující jako hlavní komunikace pro vstup do domu. Dispozičně je dům rozdělen na denní a noční zónu, které od sebe odděluje velkoryse navržený vstupní prostor.